Samana
Residential
- LIVING AREA: 3,227 SQ FT.
- ADJUSTED AREA: 3,336 SQ FT.
- TOTAL AREA: 3,552 SQ FT.
- LOT AREA: 10,758 SQ FT.
- 4 BEDROOMS
- 4.5 BATHROOMS
- GAZEBO – ROOF TOP – POOL
Location
Miami
Samana
Residential
Finishes
ENGINEERED WOOD
OR SIMILAR
CAVA BIANCO STATUARIO
OR SIMILAR
ARABESCATO
OR SIMILAR
SHELL STONE PAVER
OR SIMILAR
SHELL REEF
OR SIMILAR
MULCH
OR SIMILAR
GRAVEL GREY PIROCK
OR SIMILAR
Palette
Architecture starts when you carefully put
Ludwing Mies Van Der Rohe
two bricks together. There it begins.
General
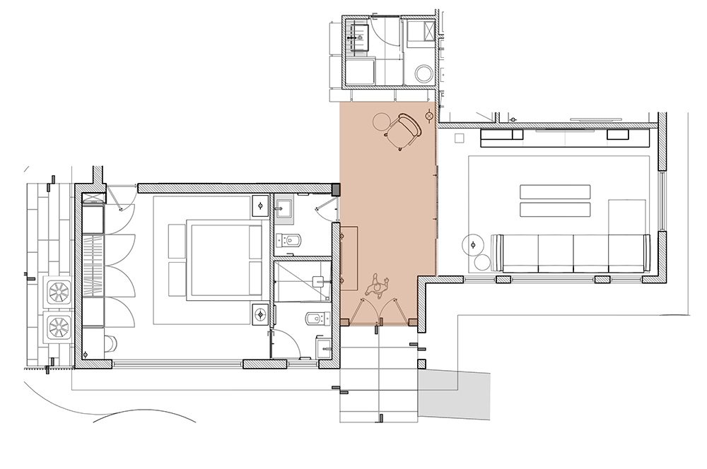
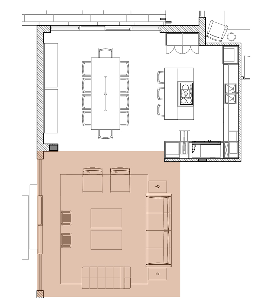
- I. LOBBY
- II. FAMILY ROOM
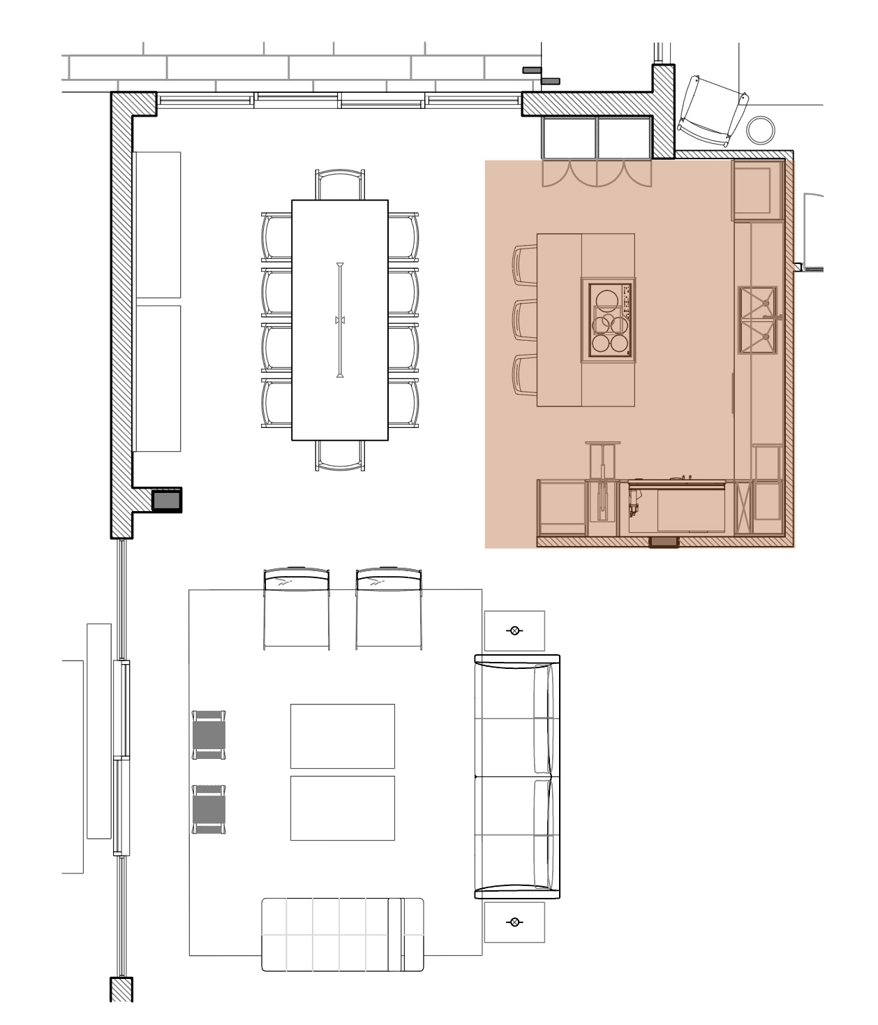
- III. KITCHEN
- IV. LIVING ROOM
- V. DINING ROOM
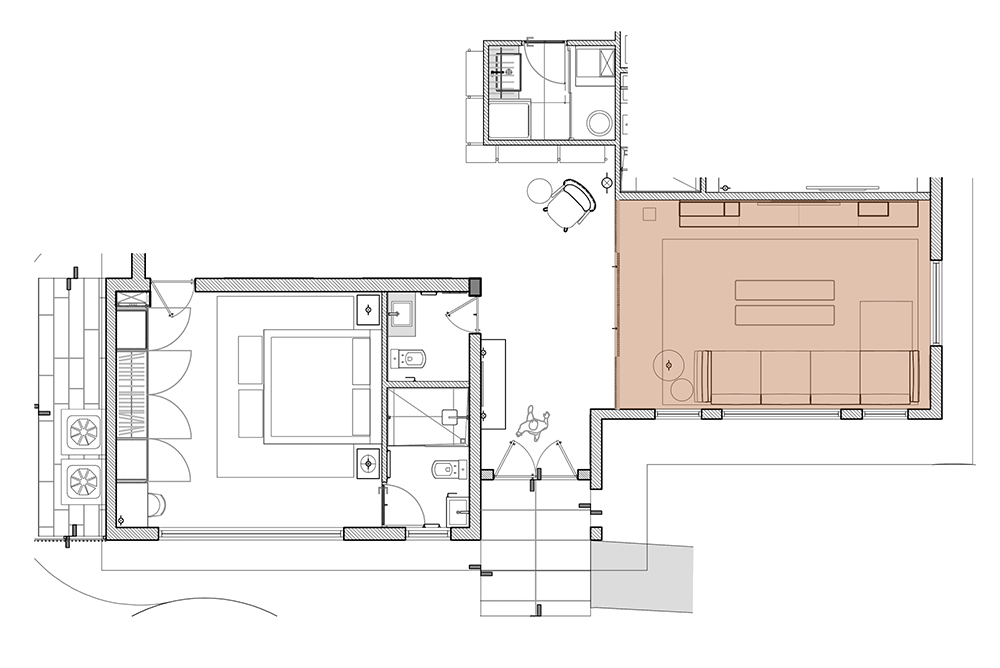
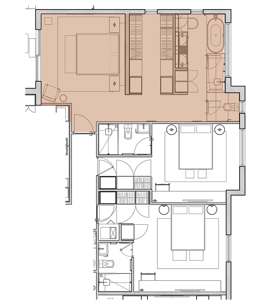
- VI. MASTER BEDROOM
- VII. BEDROOM 01
- VIII. BEDROOM 02
- IX. BEDROOM 03
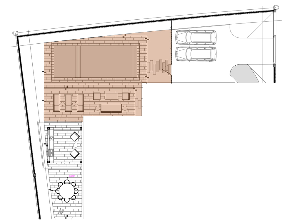
- X. PIT AREA
- XI. GAZEBO
- XII. TERRACE 1
- XIII. POOL AREA
Plan
Samana Residential
Lobby
Samana Residential
Everything you can imagine is real.
Pablo Picasso
Family
Room
Samana Residential
Art is the expression of the
Albert Einstein
profoundest thoughts in the
simplest way
Kitchen
Samana Residential
Living
Room
Samana Residential
Samana Residential
Dining
Room
Samana Residential
Master
Bedroom
Samana Residential
Samana Residential
Pit
Area
Samana Residential
Gazebo
Samana Residential
Pool
Area
Samana Residential
Samana
Residential